04.72.40.50.80
REGIE FRANCOIS GOFFIN - SYNDIC GESTION LOCATION TRANSACTION 87 Rue de Sèze 69006 LYON

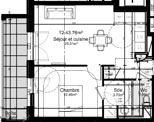
MONPLAISIR - T2 43,56m² -ETAGE ELEVE - CLE EN MAIN

< Retour
  • Prix
  • 235 000
gallery loader

Appartement 43.56 m² - 2 Pièces - Lyon (69008)

Ref 105
Partager cette offre
+1
Description de l'offre

Situé dans le secteur de Monplasir à proximité immédiate de toutes les commodités : Commerces (boulangerie, supermarché, pharmacie, etc.) à 300m.- Métro D arrêt Sans-Souci à 7 minutes,- Tramway T2/T4 à 3 minutes, Bus C25 à 2 minutes et Bus C16 à 5 minutes.- Université Jean Moulin, Groupe scolaire Simone Veil à 2 minutes, écoles supérieures, lycées, collèges et écoles élémentaires. Au sein d’une copropriété récente de 2017 encore sous garantie décennale, cet appartement T2 de 43,56 m² et 8,40m² de balcon en étage élevé avec ascenseur, bénéficie d’une superbe luminosité grâce à ses grande ouverture et son exposition Ouest. Refait à neuf, l’appartement séduit par la qualité de ses prestations :cuisine équipée, volets roulants électriques, grande terrasse, finitions soignées. Dans un quartier très calmes ce bien est déal pour un premier achat ou un investissement sécurisé grâce à son emplacement et son DPE B . Une place de parking en option pour 15.000€ est disponible au sous-sol de la résidence sécurisé. Bien soumis au régime de la copropriété (125 lots principaux répartis sur 3 allées).Charges mensuelles : 105 € incluant toutes les charges (copropriété, bâtiment, ascenseur, chauffage, eau chaude et froide).Montant estimé des dépenses annuelles d'énergie pour un usage standard : entre 380€ et 560€ par an. Prix moyens des énergies indexés sur l'année 2021, 2022 et 2023 (abonnements compris). Honoraires d'agence à la charge du vendeur. « Les informations sur les risques auxquels ce bien est exposé sont disponibles sur le site Géorisques : www.georisques.gouv.fr » (C. envir., art. R. 125-25, I). Pour tout renseignement ou visites, prenez contact avec La Régie François GOFFIN au 06.59.87.79.22 / 07.44.92.14.61

Diagnostics de performance énergétique
DPE
DPE

Montant estimé des dépenses annuelles d'énergie pour un usage standard est compris entre 380 € et 560 € . Prix moyens des énergies indexés sur les années 2021, 2022 et 2023 (abonnements compris).

Descriptif du bien

Code postal 69008


Surface habitable (m²) 43,56 m²


Surface loi Carrez (m²) 43,56 m²


Nombre de chambre(s) 1


Nombre de pièces 2


Etage 5


Nombre de niveaux 1


Ascenseur OUI


Nb de salle d'eau 1


Mode de chauffage Gaz de ville


Type de chauffage Radiateur


Format de chauffage Collectif


Interphone OUI


Visiophone OUI


Balcon OUI


Terrasse OUI


Nombre de garage 1


Exposition OUEST


Année de construction 2017


Copropriété OUI


Lot n° 45


nombre de lots 359


Quote Part annuelle des charges 1 262 €


plan de sauvegarde NON


Prix de vente honoraires TTC inclus 235 000 €


Charges 105 €


Taxe foncière annuelle 887 €


Cette annonce vous intéresse ?
* Champs obligatoires

* : Les informations recueillies sur ce formulaire sont enregistrées dans un fichier informatisé par La Boite Immo agissant comme Sous-traitant du traitement pour la gestion de la clientèle/prospects de l'Agence / du Réseau qui reste Responsable du Traitement de vos Données personnelles. La base légale du traitement repose sur l'intérêt légitime de l'Agence / du Réseau. Elles sont conservées jusqu'à demande de suppression et sont destinées à l'Agence / au Réseau. Conformément à la loi « informatique et libertés », vous disposez des droits d’accès, de rectification, d’effacement, d’opposition, de limitation et de portabilité de vos données. Vous pouvez retirer votre consentement à tout moment en contactant directement l’Agence / Le Réseau. Consultez le site https://cnil.fr/fr pour plus d’informations sur vos droits. Si vous estimez, après avoir contacté l'Agence / le Réseau, que vos droits « Informatique et Libertés » ne sont pas respectés, vous pouvez adresser une réclamation à la CNIL. Nous vous informons de l’existence de la liste d'opposition au démarchage téléphonique « Bloctel », sur laquelle vous pouvez vous inscrire ici : https://www.bloctel.gouv.fr Dans le cadre de la protection des Données personnelles, nous vous invitons à ne pas inscrire de Données sensibles dans le champ de saisie libre.
Ce site est protégé par reCAPTCHA, les Politiques de Confidentialité et les Conditions d'Utilisation de Google s'appliquent.

La ville de Lyon (69008)

autres annonces immobilières correspondant à votre recherche

Les biens similaires pour : Vente Appartement Lyon (69008)